+420 725 927 576

Warehouses and Production Premises, Business Park Malesice, Prague

  • WH-BP-M
  • map.2 Malešice
  • clock.1 Available from 04/2026
  • Rent
  • page-size 1857 m2 - 6816 m2
  • coins.2 Price on request
  • 10 m
Nezávazně poptat
Warehouse Sector Dimension Výška Price Availability Note
Whole area 1NP, 2NP, 3 NP 6816 10m Price on request 04/2026
1NP Warehouse 2035 10m Price on request 04/2026 +120 m2 office
1NP Warehouse and Production 1984 10m Price on request 04/2026 +120 m2 office
2NP Warehouse and Production 1857 10m Price on request 04/2026 +404 m2 office

More information

Are you looking for modern warehouse or production space with excellent connections to Prague and key motorway routes?

This complex in Malešice is the ideal choice for companies that want an efficient logistics solution with a wide range of facilities. The site is perfectly accessible for both freight transport and employees thanks to extensive public transport options. Extensive reconstruction with completion planned for Q2 2026 will ensure a modern and highly functional environment in line with the latest trends in industrial real estate.

 

Location

  • Metro Depo Hostivař (line A) – 15 min walk / 5 min by bus
  • Tram stop Depo Hostivař – 15 min walk / 5 min by bus
  • Bus stop Teplárna Malešice – 2 min walk
  • Prague Ring Road (D0, Jižní spojka) – 6 min drive
  • Connection to D1, D4, D8, D10, D11 motorways – 15 min drive
  • Cycle path A23, A24, A43 – 30 min drive to the centre

 

Specifications

2 variants available

 

VAR.1:

  • Loading bridge 2x
  • Direct entry 4x
  • Parking spaces 63x
  • Clear height 3.75m – 10m
  • Max. load 5t (1NP), 2t (2NP)
  • 1. NP
    • Storage space 2035 m2
    • Storage and production space 1984 m2
    • Offices and toilets. 120 m2
    • Technical space 79 m2
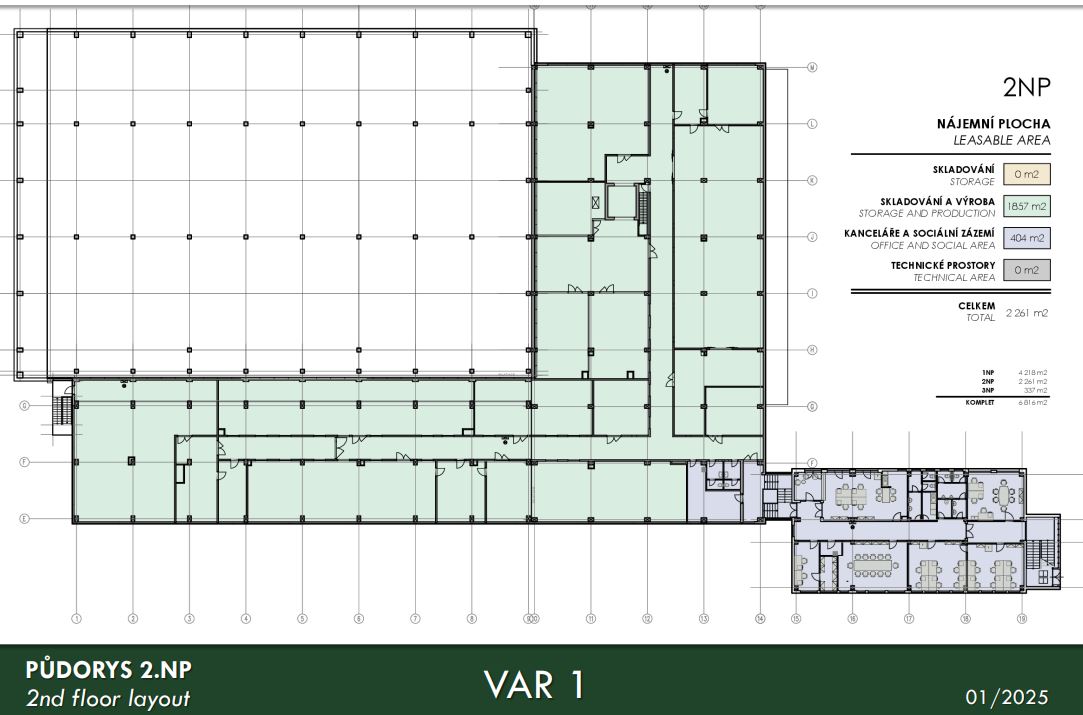
  • 2. NP
    • Storage and production space 1857 m2
    • Offices and sanitary facilities. 404 m2
  • 3. NP
    • Offices and sanitary facilities. 337 m2

 

VAR.2:

  • Loading bridge 1x
  • Direct entry 6x
  • Parking spaces 74x
  • Ground clearance 3.75m – 10m
  • Max. load 5t (1NP), 2t (2NP)
  • 1. NP
    • Storage space 1649 m2
    • Storage and production space 1984 m2
    • Offices and toilets. 491 m2
    • Technical space 95 m2
  • 2. NP
    • Storage and production space 1881 m2
    • Offices and sanitary facilities. 780 m2
  • 3. NP
    • Offices and sanitary facilities. Office and back office 342 m2

 

The price will be set individually during a personal inspection based on the client’s requirements.
If you are interested in further information, please fill in the enquiry form.
Do not hesitate to contact us, we will help you negotiate interesting lease conditions.

 

Inquiry - Warehouses and Production Premises, Business Park Malesice, Prague



      Leave us your email.
      We will send you the pdf export soon.



      Máte zájem
      o více informací?

      Ing. Daniel Rapák

      +420 725 927 576 daniel@rapak-co.com Call me

        Call me back
        [dynamichidden cz-wh-name "CF7_get_post_var key='title'"]
        [dynamichidden cz-wh-id "CF7_get_custom_field key='ec'"]

        Ikona skladu
        TIP
        Rent
        BTS available

        Contera Park Usti nad Labem

        • map.2 Ústí nad Labem
        • clock.1 Available from 12/2026
        • page-size 6000 - 34000 m2
        • coins.2 Price on request
        Show more

        Do not have time to search?

        We do have. Please, leave us your contact and we will contact you and help you find the right space.