+420 725 927 576

Pronájem skladových prostor, Plzeň, Železniční ulice

  • WH-PLZ-ŽU
  • map.2 Plzeň
  • clock.1 Dostupné od 03/2026
  • Pronájem
  • page-size 676 m2 - 10364 m2
  • coins.2 Cena na vyžádání
  • 5.7 - 10 m
Nezávazně poptat
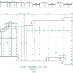
Hala Sektor Rozměr Výška Cena Dostupnost Poznámka
01 1 676 10m Cena na vyžádání Ihned
01 2 740 10m Cena na vyžádání Ihned
01 3 750 10m Cena na vyžádání Ihned
01 4 1163 8.7m Cena na vyžádání Ihned
01 5-11 10364 5.7m Cena na vyžádání Ihned

Další informace

Hledáte strategicky umístěné skladové prostory s výborným logistickým napojením a železniční vlečkou? V tom případě pro vás máme ideální řešení! Nabízíme k pronájmu flexibilní skladové haly v průmyslové zóně v Plzni o celkové ploše až 14 500 m².

Areál vyniká vlastní železniční vlečkou, která je napojena na veřejnou železniční síť, což umožňuje efektivní přepravu zboží nejen po silnici, ale i po kolejích. Díky své poloze v těsné blízkosti centra Plzně, výborné dostupnosti nákladní dopravou a přímému napojení na hlavní silniční tahy představuje tato lokalita vynikající příležitost pro logistické, distribuční i výrobní firmy.

Přidanou hodnotou je možnost zřízení kancelářského a administrativního zázemí přímo v objektu, moderní sociální vybavení a nepřetržitý přístup 24/7.

 

 

Lokalita

  • Centrum Plzně 2 km
  • Praha 91 km
  • Karlovy Vary 80 km
  • České Budějovice 133 km
  • Norimberk 200 km

 

Specifikace prostor

  • Železniční vlečka napojená na veřejnou síť
  • Vjezdy a výjezdy pro kamiony ze dvou protilehlých stran haly
  • Střešní světlíky
  • Administrativní zázemí
  • Minimální světlá výška 5,7 m
  • Možnost využití 2 vysokozdvižných vozíků s nosností 5 tun
  • Nové sociální zázemí
  • Areál oplocen a střežen kamerovým systémem

 

 

Cena se sestaví individuálně při osobní prohlídce na základě požadavků klienta.
V případě zájmu o další informace vyplňte prosím poptávkový formulář.
Neváhejte se na nás obrátit, pomůžeme vám vyjednat zajímavé nájemní podmínky.

Poptávka - Pronájem skladových prostor, Plzeň, Železniční ulice



      Napište prosím, co přesně hledáte.
      Brzy Vám zašleme kompletní přehled trhu.



      Máte zájem
      o více informací?

      Ing. Daniel Rapák

      +420 725 927 576 daniel@rapak-co.com Zavolejte mi

        Zavolejte mi zpět
        [dynamichidden cz-wh-name "CF7_get_post_var key='title'"]
        [dynamichidden cz-wh-id "CF7_get_custom_field key='ec'"]

        Ikona skladu
        TIP
        Pronájem

        Sklad k pronájmu Liberec – Dolní Hanychov

        • map.2 Liberec VIII - Dolní Hanychov
        • clock.1 Dostupné od 08/2026
        • page-size 250 - 3460 m2
        • coins.2 Cena na vyžádání
        Zobrazit více

        Nemáte čas na hledání?

        My ano, zanechte nám na vás kontakt. My se vám obratem ozveme a pomůžeme s hledáním vhodného prostoru.