+420 725 927 576

Pronájem skladové haly v Plzni – Doubravka

  • WH-FIN-PD
  • map.2 Plzeň-Doubravka
  • clock.1 Dostupné od 03/2026
  • Pronájem
  • page-size 100 m2 - 2513 m2
  • coins.2 Cena na vyžádání
  • 5.8 m
Nezávazně poptat
Hala Sektor Rozměr Výška Cena Dostupnost Poznámka
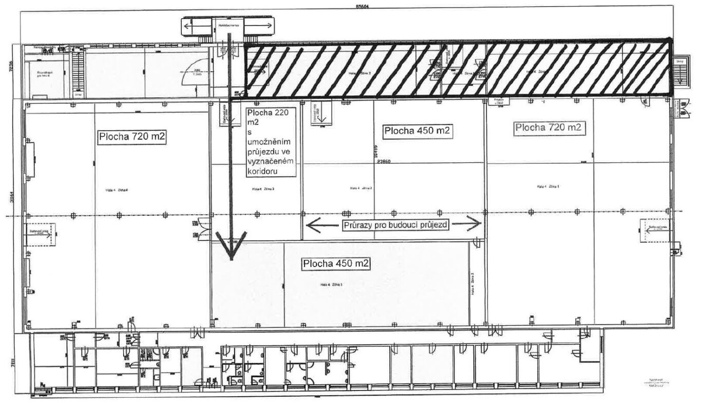
H4 01 2513 5m Cena na vyžádání Ihned + 378 m2 kanceláře
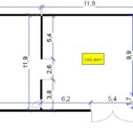
H4 Sklep 100 m Cena na vyžádání Ihned
H6 01 730 5m Cena na vyžádání Ihned včetně kanceláří, 80 m2 parkoviště, 100 m2 manipulační plocha
H6 Suterén 194 m Cena na vyžádání Ihned

Další informace

Průmyslový areál v ulici Hřbitovní v plzeňské městské části Doubravka nabízí variabilní skladové a výrobní prostory vhodné pro logistiku, lehkou výrobu, montážní činnost i kombinaci provozu s administrativním zázemím. Areál se nachází v zavedené průmyslové lokalitě s velmi dobrou dostupností pro nákladní i osobní dopravu a s přímým napojením na hlavní dopravní tahy města Plzně. Díky své poloze umožňuje efektivní obsluhu města i širšího regionu a současně nabízí dobrou dostupnost pracovní síly.

K dispozici jsou různé typy prostor včetně větších skladových hal, menších provozních jednotek, kanceláří a doplňkových skladů v suterénu. Prostory jsou vhodné pro firmy hledající funkční řešení v rámci městské průmyslové zástavby s dobrou dopravní obslužností.

Lokalita

  • Praha 95 km

  • Rozvadov 75 km

  • Mnichov 300 km

  • Silnice I/26, dálnice D5
  • Centrum Plzně 5 km

 

 

 

Technické specifikace

  • Světlá výška 5m

  • Nosnost podlah 5 t/m2

  • Vjezdy v úrovni vozovky

  • Vstup z rampy

  • Parkování v areálu

  • Manipulační plochy pro nákladní vozidla

  • Zastávka MHD v blízkosti

  • Železniční stanice v dosahu

  • Hala H4:
    • 2513 m2 skladová část, 378 m2 kanceláře
    • 2x garážové vjezdy v úrovni vozovky

    • 2x nakládací rampy

    • Plynové vytápění

    • Možnost dělení prostor na dvě jednotky

    • 2x toaleta

 

 

 

Cena se sestaví individuálně při osobní prohlídce na základě požadavků klienta.
V případě zájmu o další informace vyplňte prosím poptávkový formulář.
Neváhejte se na nás obrátit, pomůžeme vám vyjednat zajímavé nájemní podmínky.

 

 

Poptávka - Pronájem skladové haly v Plzni – Doubravka



      Napište prosím, co přesně hledáte.
      Brzy Vám zašleme kompletní přehled trhu.



      Máte zájem
      o více informací?

      Ing. Daniel Rapák

      +420 725 927 576 daniel@rapak-co.com Zavolejte mi

        Zavolejte mi zpět
        [dynamichidden cz-wh-name "CF7_get_post_var key='title'"]
        [dynamichidden cz-wh-id "CF7_get_custom_field key='ec'"]

        Ikona skladu
        TIP
        Pronájem

        Sklad k pronájmu Liberec – Dolní Hanychov

        • map.2 Liberec VIII - Dolní Hanychov
        • clock.1 Dostupné od 08/2026
        • page-size 250 - 3460 m2
        • coins.2 Cena na vyžádání
        Zobrazit více

        Nemáte čas na hledání?

        My ano, zanechte nám na vás kontakt. My se vám obratem ozveme a pomůžeme s hledáním vhodného prostoru.